hkitalk.net 香港交通資訊網

 找回密碼
 會員申請加入
搜索


(B0)香港巴士車務及車廂設備 (B1)香港巴士廣告消息/廣告車行踪 (B2)香港巴士討論 [熱門] [精華] (B3)巴士攝影作品貼圖區 [熱門] [精華] (B3i)即拍即貼 -手機相&翻拍Mon相 (B4)兩岸三地巴士討論 [精華] (B5)外地巴士討論 [精華]

Advertisement


(B6)旅遊巴士及過境巴士 [精華] (B7)巴士特別所見 (B11)巴士精華區 (B22)巴士迷吹水區   (V)私家車,商用車,政府及特種車輛 [精華]
(A6)相片及短片分享/攝影技術 (A10)香港地方討論 [精華] (A11)消費著數及飲食資訊 (A16)建築物機電裝置及設備 (A19)問路專區 (N)其他討論題目  
(F1)交通路線集思建議區 (C2)航空 [精華] (C3)海上交通及船隻 [精華] (D1)公共交通有關商品 [精華]   (Y)hkitalk.net會員福利部 (Z)站務資源中心
(R1)香港鐵路 [精華] (R2)香港電車 [精華] (R3)港外鐵路 [精華]   (O1)omsi討論區 (O2)omsi下載區 (O3)omsi教學及求助區
(M1)小型巴士綜合討論 (M2)小型巴士多媒體分享區 (M3)香港小型巴士字軌表        
 

Advertisement

 

hkitalk.net 香港交通資訊網»論壇 (R) Railway 鐵路討論區 香港鐵路 (R1) 又再講下地鐵嘅預留位

又再講下地鐵嘅預留位

查看數: 13384 | 評論數: 37 | 收藏 1
關燈 | 提示:支持鍵盤翻頁<-左 右->
    組圖打開中,請稍候......
發佈時間: 2025-10-4 20:00

正文摘要:

declan 發表於 2025-11-3 02:47
也來補充一些出口預留位
--------------------------------------------------
奧運站 預留出口條件,通往 ...

2A10 係地契寫左要起地下街

回復

ArnoldC 發表於 2025-11-30 01:24
declan 發表於 2025-11-24 01:37
睇開鐵路保護界限,發現 市區綫 的圖則已全面更新,清楚標示已建結構(包括開放公眾位、不開放的救援通道) ...

設計上上環街市/林士係兩個獨立車站,而且係轉車站,可能當時估計需要多啲出入口/逃生通道啩?

declan 發表於 2025-11-28 17:09
marcowong1011 發表於 2025-11-27 23:06
上環站不敢苟同
粵海兩條樓梯同易通兩條樓梯係任何樓層都互不相通
粵海地庫主要都係環控系統機房,不具備 ...

多謝樓主分享
睇返 Apple Daily 的影片
原來現實入面只有這些的通道
gy9308 發表於 2025-11-28 13:31
declan 發表於 2025-11-24 01:37
睇開鐵路保護界限,發現 市區綫 的圖則已全面更新,清楚標示已建結構(包括開放公眾位、不開放的救援通道) ...

上環近粵海建成部份無你諗咁多
marcowong1011 發表於 2025-11-27 23:06
declan 發表於 2025-11-24 01:37
睇開鐵路保護界限,發現 市區綫 的圖則已全面更新,清楚標示已建結構(包括開放公眾位、不開放的救援通道) ...

上環站不敢苟同
粵海兩條樓梯同易通兩條樓梯係任何樓層都互不相通
粵海地庫主要都係環控系統機房,不具備輕易改為大堂嘅條件
2013 年發展腐屍後,毒果曾經闖入易通樓梯
緊急出口有腐屍 港鐵竟唔知



炮台山站因為冇其他確實證據,所以一直都冇特別指出,亦唔作任何猜測
declan 發表於 2025-11-24 01:37
本帖最後由 declan 於 2025-11-24 02:04 編輯

睇開鐵路保護界限,發現 市區綫 的圖則已全面更新,清楚標示已建結構(包括開放公眾位、不開放的救援通道)、已廢棄、已回填的通道等

----------
上環站 - 消失了的西大堂
結構已建成但最後卻封閉,改標示為緊急出口,長年閉鎖。
一個咁淺層的車站,唔肯定是否真係有需要咁多個救援出口,
個人覺得純粹係節省營運成本

SHW1.png

sheung wan.png

----------
炮台山站 - 消失了的西大堂
大家都知炮台山站本來有預留西大堂,七海商業中心的地契亦已預留了出入口。但最終因成本考慮(估計使用量不足)而沒有興建,改設立行人過路處
鐵路保護界限引證了這一點,驚訝的是「已建通道結構」顯示通道已建至英皇道以南之行人路,可惜最終只作預留

FOH1.png

FOH.png

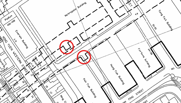
declan 發表於 2025-11-23 23:18
本帖最後由 declan 於 2025-11-23 23:19 編輯

荔枝角站的鐵路保護界限圖則 (2023 年 10 月版) 可以睇到 億利工業中心的預留出入口位置

LCK.png

有樣嘢諗唔明,荔枝角站的站體及出口預留位,在荃灣線 1982 年通車時已落成,
而 億利工業中心 1986 年入伙卻可以唔設立該出入口。唔知係咪 批地地契 的條款有咩蝦碌寫漏呢

KCK1.png
hkaiw 發表於 2025-11-16 00:34
marcowong1011 發表於 2025-11-16 00:21
筲箕灣站可以咁講

茘枝角站出口得閒經過先去影下,但依家外觀上同一間普通鋪頭冇分別 ...

上星期經過茘枝角站所見似乎已經無跡可尋,至於筲箕灣站如果從逃生平面圖所見轉彎位是似乎向東喜道東行那邊「起角」。
marcowong1011 發表於 2025-11-16 00:21
hkaiw 發表於 2025-11-6 23:51
難道是重建前的招商局大廈?

另外筲箕灣站的預留位難道是想興建行人隧道往東喜道現時D1出入口附近?至於 ...

筲箕灣站可以咁講

茘枝角站出口得閒經過先去影下,但依家外觀上同一間普通鋪頭冇分別
天空之神 發表於 2025-11-16 00:03
declan 發表於 2025-11-3 02:47
也來補充一些出口預留位
--------------------------------------------------
奧運站 預留出口條件,通往 ...

2A10 係地契寫左要起地下街

站規|清理本站Cookies|hkitalk.net 香港交通資訊網

GMT+8, 2025-12-3 16:59

Powered by Discuz! X3.4

Copyright © 2001-2020, Tencent Cloud.

快速回復 返回頂部 返回列表